
Lithium Battery Recycling Machine
With the popularity of electric vehicles, portable electronic devices and renewable energy, the application of lithium batteries is increasing rapidly. While these advanced batteries offer portability and efficient energy storage, they also raise the pressing issue of disposing of used lithium batteries. Improper disposal of used lithium batteries can pose significant risks to the environment and public health, while also leading to the waste of valuable rare and toxic metal resources.
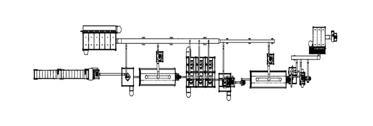
PROJECT INTRODUCTION
System Introduction
Our lithium battery recycling line is designed for efficient and safe processing of used lithium-ion batteries. With a dry peeling device and advanced sorting system, the machine ensures high-precision separation of copper and aluminum, delivering pure and valuable recycled materials.These features make our lithium battery recycling line a top choice for environmentally-friendly and precise battery recycling.
APPLICABLE MATERIALS
OUTPUT MATERIAL
FEATURES
High Recovery Rate of Critical Metals
Engineered to maximize the recovery of valuable materials such as lithium, cobalt, nickel, copper, and aluminum. Through precise crushing, sieving, and separation processes, the system ensures high-purity black mass output and efficient metal liberation, increasing overall recycling profitability.
Advanced Safety-Controlled Processing
Designed with multi-level safety protection including inert gas feeding, temperature monitoring, explosion-proof structures, and dust suppression systems. These features significantly reduce fire and explosion risks when handling charged or partially discharged lithium batteries.
Efficient Black Mass Separation
Our optimized mechanical and airflow separation modules effectively separate cathode powder from copper and aluminum foils. The process minimizes material loss while maintaining stable particle size control, ensuring consistent downstream refining quality.
Wide Compatibility for Battery Types
Capable of processing lithium-ion batteries from EV packs, energy storage systems, consumer electronics, and battery production scrap. Modular configurations allow flexible adjustment based on battery size, chemistry, and processing capacity requirements.
Environmental Compliance
Equipped with a complete dust collection and gas purification system to control fine particles and volatile compounds generated during shredding. The closed-loop design reduces secondary pollution and meets international environmental standards.
Modular Design for Scalable Capacity
From pilot-scale systems to full industrial recycling lines, the modular architecture supports capacity expansion as your business grows. Independent functional units simplify maintenance, reduce downtime, and improve long-term operational efficiency.
DISPOSAL SOLUTION
MAIN EQUIPMENTS
Grinder
Versatile grinder handles various material grinding tasks efficiently. With a powerful motor and precision engineering, it meets your specific needs for reliable material processing.
Rotary Vibrating Screen
Rotary vibrating screen offers precise and efficient screening solutions, perfect for various materials. Experience superior screening quality.
Gravity Separator
Gravity separator is a high-efficiency solution for separating mixed materials based on density. Streamline your sorting process with precision.
PERFORMANCE ADVANTAGE
Lithium battery dust collector
Introducing the Lithium Battery Dust Collector, a cutting-edge solution designed specifically for the unique challenges of lithium battery manufacturing. This innovative device combines powerful suction capabilities with advanced filtration technology to effectively capture and contain hazardous dust particles generated during the production process.
The Lithium Battery Dust Collector is engineered to ensure the utmost safety in battery manufacturing facilities. Its high-efficiency filters are specifically designed to remove and isolate harmful particles, such as lithium, cobalt, and other heavy metals, preventing their dispersion into the environment and safeguarding the health of workers.
Knife box
Introducing the Knife Box, the ultimate storage solution for your kitchen knives. This sleek and compact organizer offers a safe and convenient way to store and protect your valuable knife collection. With its durable construction and innovative design, the Knife Box ensures easy access and keeps your knives sharp, secure, and ready for use.
The Knife Box features a high-quality, abrasion-resistant exterior that shields your knives from scratches, moisture, and other potential damage. Inside, a soft and cushioned lining provides additional protection, preventing blades from dulling or chipping. The magnetic closure system securely holds the box shut, keeping your knives securely in place during storage or transportation.
Distribution Cabinet
Introducing the Distribution Cabinet, a state-of-the-art solution for efficient and reliable power distribution. This robust and versatile cabinet is designed to streamline electrical connections and ensure optimal performance in industrial and commercial settings. With its advanced features and durable construction, the Distribution Cabinet is the perfect choice for seamless power management.The Distribution Cabinet is engineered to meet the demands of modern power distribution systems. Its compact design allows for easy installation and integration into existing infrastructure. Equipped with high-quality components and advanced circuitry, this cabinet offers exceptional reliability and longevity, minimizing downtime and maximizing productivity.
Air flow separator
Introducing the Air Flow Separator, a cutting-edge solution for efficient air management in industrial and commercial environments. This innovative device is designed to separate and control airflows, optimizing ventilation systems and ensuring optimal indoor air quality. With its advanced technology and versatile applications, the Air Flow Separator is the ideal choice for enhancing airflow performance.The Air Flow Separator utilizes precision-engineered components to direct and distribute airflows effectively. Its adjustable louvers and dampers allow for precise control of air direction, volume, and velocity, enabling customized airflow patterns to suit specific requirements. This flexibility ensures efficient air distribution, reducing energy waste and improving overall system performance.
CUSTOMER CASES
Frequently Asked Questions
Does a lithium ion battery recycling machine require pre-treatment?
Yes. A lithium ion battery recycling machine usually requires pre-treatment steps such as discharging and dismantling to ensure safe and efficient processing.
Is there any pollution during the recycling process?
A professional lithium battery recycling machine is equipped with dust collection and gas treatment systems, which help control dust and emissions during operation.
Can the lithium battery recycling system be customized?
Yes. A lithium ion battery recycling machine can be customized based on battery type, capacity, and recovery requirements, including different separation and crushing configurations.
What maintenance is required for a lithium battery recycling machine?
Regular maintenance includes checking key components, cleaning dust systems, and inspecting wear parts to ensure stable operation of the lithium ion battery recycling machine.



